La Grande Route De La Cote, St. Clement, JE2
£875,000
3
22 Photos
UNDER OFFER WITH LE MAISTRE ESTATES - We are pleased to present Langmead, a generously proportioned detached bungalow occupying a large plot in the highly sought-after Parish of St Clement. Just moments from the beach and slipway at Le Bourg, and ideally positioned on the popular Number 1 bus route offering frequent service between Gorey and St Helier, this property combines coastal living with convenient access to town. Offering three to four bedrooms, this spacious home provides excellent scope for modernisation and further development. The accommodation includes a dual-aspect lounge with an open fireplace, a kitchen opening into a bright dining area, and a large sunroom overlooking the private rear garden. There are two double bedrooms (one en-suite), a third single bedroom, and a great sized house shower room. A flexible entrance/study area—previously divided to create a fourth bedroom—adds to the property’s versatility. The full-height loft space presents a significant opportunity to expand the living accommodation, potentially adding extra bedrooms and bathrooms, subject to planning. Beneath the property lies a full-footprint basement, offering extensive storage, and even a dedicated wine cellar. Externally, Langmead boasts a detached garage with adjoining utility room, a large secure and enclosed rear garden, generously sized front garden and the driveway accommodates parking for up to five vehicles. Subject to Planning, Langmead is a unique opportunity to create a bespoke coastal residence or development option in one of Jersey’s most popular locations. Early viewing is highly recommended.
Summary
UNDER OFFER WITH LE MAISTRE ESTATES - We are pleased to present Langmead, a generously proportioned detached bungalow occupying a large plot in the highly sought-after Parish of St Clement. Just moments from the beach and slipway at Le Bourg, and ideally positioned on the popular Number 1 bus route offering frequent service between Gorey and St Helier, this property combines coastal living with convenient access to town. Offering three to four bedrooms, this spacious home provides excellent scope for modernisation and further development. The accommodation includes a dual-aspect lounge with an open fireplace, a kitchen opening into a bright dining area, and a large sunroom overlooking the private rear garden. There are two double bedrooms (one en-suite), a third single bedroom, and a great sized house shower room. A flexible entrance/study area—previously divided to create a fourth bedroom—adds to the property’s versatility. The full-height loft space presents a significant opportunity to expand the living accommodation, potentially adding extra bedrooms and bathrooms, subject to planning. Beneath the property lies a full-footprint basement, offering extensive storage, and even a dedicated wine cellar. Externally, Langmead boasts a detached garage with adjoining utility room, a large secure and enclosed rear garden, generously sized front garden and the driveway accommodates parking for up to five vehicles. Subject to Planning, Langmead is a unique opportunity to create a bespoke coastal residence or development option in one of Jersey’s most popular locations. Early viewing is highly recommended.Key features
- Detached 3 to 4 bedroom, 2 bathroom, 3 reception room bungalow on a large plot
- Across the road from the beach at Le Bourg - St Clement & on the No. 1 bus route
- Very spacious, light & airy + 9ft ceilings
- Full height loft space ideal for creating further bedrooms & bathrooms
- Basement spanning the whole footprint of the house
- Large, safe & enclosed rear garden plus spacious front garden
- Garage utility & driveway parking for 5 cars
- Short stroll to shops & local amenities
- Plenty of development potential
- Viewing is a must
Full Description
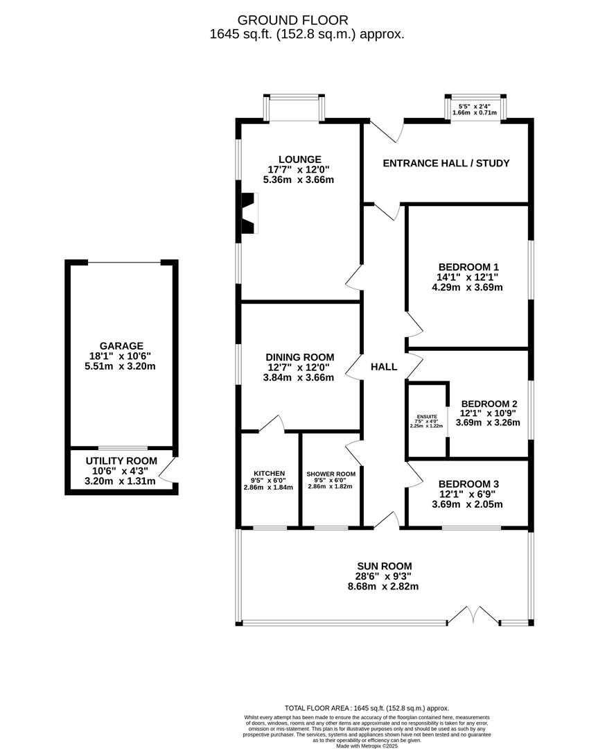
Entrance room (5.02 x 2.46 (16'5" x 8'0"))Large entrance area laid to carpet set up as an entrance and study / reception. This area used to be the entrance hall with separate bedroom to the left making use of the large bay window letting in plenty of light.
Internal hallway
Laid to carpet with doors to lounge, principal bedroom, dining room, bedrooms 2 & 3, house shower room and rear sunroom.
Kitchen (3.017 x 1.7 (9'10" x 5'6"))
Kitchen with a range of high and low white wooden cupboards with laminate worktops, integrated oven, microwave, hobs with extractor over and standalone washer / dryer and slimline dishwasher. Window looking into sunroom and vinyl flooring.
Dining Room (3.837 x 3.65 (12'7" x 11'11"))
Dining room laid to carpet off kitchen. Could be knocked through to make a larger kitchen / diner. Large window letting in plenty of light overlooking the side of the house.
Lounge (5.36 x 3.65 (17'7" x 11'11"))
Spacious dual aspect lounge laid to carpet with large windows letting in plenty of light. Feature open fireplace.
Sun Room (8.7 x 2.816 (28'6" x 9'2"))
Large bright and airy sunroom overlooking the rear garden.
Principal Bedroom (4.285 x 3.687 (14'0" x 12'1"))
Great sized double bedroom laid to carpet with plenty of built-in furniture and large window overlooking side of property.
Bedroom 2 (3.257 x 3.687 (10'8" x 12'1"))
Double bedroom laid to carpet with large window overlooking side of property.
En-suite (2.24 x 1.0 (7'4" x 3'3"))
En-suite shower room with tiled floor & part walls, shower cubicle and screen, wash hand basin with mirrored cupboard above & WC.
Bedroom 3 (3.687 x 2.05 (12'1" x 6'8"))
Large single bedroom laid to carpet with window looking into rear sun room.
House Shower Room (3.017 x 1.852 (9'10" x 6'0"))
Tiled floor & part walls. Large walk-in shower with screen, wash hand basin with cupboards below and mirrored cupboard above, WC and heated towel rail.
Loft Space
Full height loft space ideal for additional bedrooms and bathrooms, (subject to Planning).
Basement
Large basement the size of the entire house with 1.7m head height between joists and 1.55m between the concrete floor and bottom of joists. Currently used as storage and previously a wine cellar.
Rear garden
Large walled in rear garden with paved areas and gravelled areas for planting.
Front garden
Really good sized south facing front garden with areas of crazy paving and gravel.
Garage & Utility
Single garage with concrete floor, lighting & electrics.
Store to rear with sink and cupboards, electric & lighting.
Driveway
Patterned concrete driveway with parking for 5 cars.
Viewing/Disclaimer
Please contact us on 01534 840818 if you wish to arrange a viewing appointment for this property or require further information.Le Maistre Estates - JS1 endeavour to maintain accurate depictions of properties in Virtual Tours, Floor Plans and descriptions, however, these are intended only as a guide and purchasers must satisfy themselves by personal inspection.

